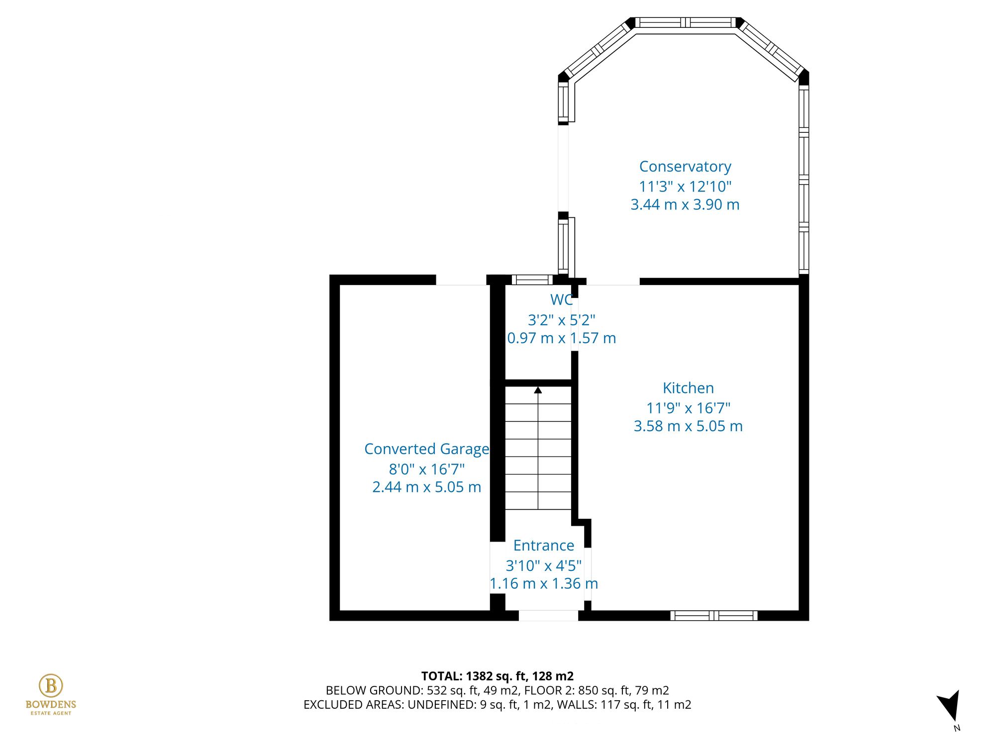
NO CHAIN. This impressive three-bedroom, two-bathroom end of terrace house offers a modern and versatile living environment, perfectly suited for families or professionals seeking both comfort and style. The heart of the home is the spacious, contemporary kitchen, complete with a central island, integrated appliances, and units. The Conservatory benefits from lots of natural light and french doors opening up to the garden. Downstairs WC. Large windows ensure the entire space is bathed in natural light, creating a bright and welcoming atmosphere ideal for entertaining or casual dining. The generously sized reception room features expansive windows, neutral decor, and flexible layout options, making it perfect for both relaxation and gatherings. Both bathrooms are thoughtfully designed with tile finishes, sanitary ware, and functional details, including a shower and bath-tub with shower, ensuring comfort and convenience for all residents.
Enjoy seamless indoor-outdoor living with the property’s spacious conservatory, which opens directly onto a private patio and well-maintained garden. This tranquil outdoor space is ideal for entertaining, family activities, or simply unwinding in a peaceful setting. Practical features abound, including ample off-road parking, two integrated garages, ceiling fans for added comfort, and tiled flooring in key areas for durability and style. The neutral decor throughout provides a blank canvas for personalisation, This outstanding home combines modern touches with practical amenities, presenting a rare opportunity to secure a property ready to move straight into and enjoy.
This property is currently a Leasehold property with potential to not only purchase the other garage below but also to convert the property into a freehold property.
*Agent Notes
1. MONEY LAUNDERING REGULATIONS: Intending purchasers will be asked to produce photographic and proof of address identification documentation at a later stage and we would ask for your co-operation in order that there will be no delay in agreeing the sale. General: While we endeavour to make our sales particulars fair, accurate and reliable, they are only a general guide to the property and, accordingly, if there is any point which is of particular importance to you, please contact the office and we will be pleased to check the position for you, especially if you are contemplating travelling some distance to view the property. . Measurements: These approximate room sizes are only intended as general guidance. You must verify the dimensions carefully before ordering carpets or any built-in furniture. Services: Please note we have not tested the services or any of the equipment or appliances in this property, accordingly we strongly advise prospective buyers to commission their own survey or service reports before finalising their offer to purchase. THESE PARTICULARS ARE ISSUED IN GOOD FAITH BUT DO NOT CONSTITUTE REPRESENTATIONS OF FACT OR FORM PART OF ANY OFFER OR CONTRACT. THE MATTERS REFERRED TO IN THESE PARTICULARS SHOULD BE INDEPENDENTLY VERIFIED BY PROSPECTIVE BUYERS OR TENANTS. NEITHER MALCOLMS RESIDENTIAL SALES LIMITED NOR ANY OF ITS EMPLOYEES HAS ANY AUTHORITY TO MAKE OR GIVE ANY REPRESENTATION OR WARRANTY WHATEVER IN RELATION TO THIS PROPERTY