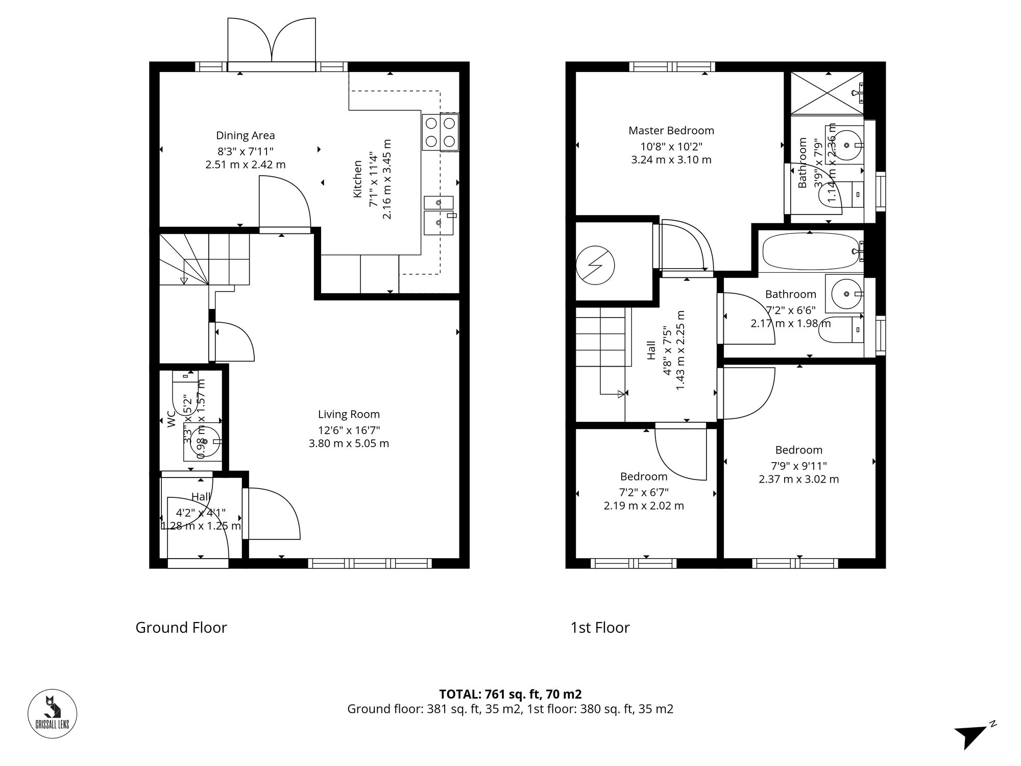
This beautifully presented three-bedroom, two-bathroom semi-detached house offers contemporary living in a modern and thoughtfully designed space. The property welcomes you with a sleek front door featuring a distinctive diamond-shaped window, leading into a bright and airy entryway enhanced by a neutral colour palette and stylish fixtures. The spacious open-plan reception room is flooded with natural light from large windows. Plush carpeting and modern flooring throughout the living and dining areas provide comfort and a sophisticated finish, making the space ideal for both relaxing and entertaining. The kitchen features sleek grey cabinetry, integrated appliances including an oven and extractor fan, and ample countertop space for meal preparation. Light wood and laminate flooring add to the clean, contemporary feel, while French doors from the kitchen and dining area offer direct access to the garden and a paved patio, perfect for alfresco dining.
The property benefits from three bedrooms, each featuring large windows, neutral décor, and warm carpeted flooring. The master bedroom includes a modern en-suite bathroom with contemporary fixtures and a walk-in shower, while the main bathroom boasts a full bath-tub, modern tiling, and plenty of natural light. Additional conveniences include practical under-stair storage and a wall-mounted TV in the master bedroom. Outside, the home enjoys exceptional kerb appeal with a modern brick exterior, a well-maintained front garden, and double glazed windows for energy efficiency. Off-road parking is provided via a spacious driveway, complemented by an electric vehicle charging point, making this property ideal for eco-conscious buyers. The generously sized rear garden is enclosed by sturdy wooden fencing for privacy and features a lush lawn, a paved patio area for outdoor seating, and a garden shed for additional storage. This property is part of a newly built development, offering a safe and pleasant residential environment with well-kept sidewalks and green spaces. With its blend of modern style, functional spaces, and outstanding outdoor amenities, this semi-detached house is perfectly suited for families, professionals, or anyone seeking a stylish and move-in ready home.